Fabricat in*:





















VitaFresh - Fructele și legumele tale rămân proaspete mai mult timp
Sertarul VitaFresh oferă mediul ideal de păstrare pentru toate alimentele tale proaspete, datorită controlului temperaturii. Condițiile din sertar pot fi ajustate, astfel încât fructele și legumele tale să rămână proaspete mai mult timp. Mai multe alimente de savurat, mai puține alimente irosite.
Iluminare LED - Alimente în lumina reflectoarelor
Cu iluminare LED durabilă și eficientă energetic, nu vei rata nimic din interiorul aparatului tău. Lumina puternică și uniformă îți permite să vezi clar fiecare raft. Iar dacă modelul tău include Home Connect, poți controla iluminarea direct din aplicație - poți porni sau opri, sau ajusta intensitatea luminii în funcție de preferințele tale. Pentru că o vizibilitate excelentă înseamnă mai puțină căutare și mai mult confort.
BigBox - Mai mult spațiu în congelator pentru alimentele tale preferate
BigBox este un sertar pentru alimente congelate, conceput pentru depozitarea practică a recipientelor suprapuse sau a articolelor mai mari, precum torturi sau pizza. Datorită dimensiunii sale extra-înalte, oferă suficient spațiu pentru depozitarea produselor congelate voluminoase, fiind ideal pentru evenimente speciale, cum ar fi aniversarea unui copil sau congelarea unui tort de nuntă.
Easy Access Shelf - Acces ușor la conținutul frigiderului
Când frigiderul este plin, este greu să ții evidența legumelor sau a gustărilor ascunse în spate. De aceea, am conceput raftul EasyAccess, special realizat ca tu să poți vedea conținutul frigiderului dintr-o singură privire. Tot ce trebuie să faci este să îl tragi și vei avea acces ușor la toate alimentele. Fabricat din sticlă incasabilă, acest raft ușor de manevrat îți permite să găsești rapid ingredientele potrivite pentru următoarea ta masă.
Low Frost - Congelare, cu acumulare minimă de gheață
Necesitatea de a dezgheța în mod constant un congelator convenţional implică investiţie de timp şi de energie. LowFrost reduce cantitatea de gheaţă care se formează în congelatorul tău pentru a elimina necesitatea de dezgheţare frecventă. Mai puțină gheață, mai mult confort.
Sertare organizate în congelator
Un sistem ingenios de sertare în congelator pe 3 nivele creează spațiu de depozitare suplimentar pentru alimente congelate, de la cutii pentru pizza la vafe congelate. Noul sistem organizat de aranjare a rafturilor, la care se adaugă iluminarea cu LED, prezintă cu claritate toate produsele din congelator, astfel încât alimentele să nu rămână uitate.
Super Congelare - Protejează alimentele precongelate
Adăugarea de alimente noi în congelator crește temperatura internă, ceea ce poate duce la decongelare și pierderea aromei. Funcția Super Congelare asigură congelarea rapidă a alimentelor proaspăt introduse, prevenind astfel decongelarea celorlalte produse din congelator. Aparatele dotate cu funcție automată de congelare revin la modul normal de funcționare imediat ce se atinge temperatura necesară, evitând consumul inutil de energie. Astfel, alimentele congelate își păstrează gustul, chiar și atunci când se adaugă produse noi.
Rafturi din sticlă securizată - Stabilitate sporită pentru o depozitare în siguranță
Toate rafturile din sticlă sunt realizate din sticlă incasabilă, foarte rezistentă. În felul acesta, poți depozita în siguranță în frigider și alimente grele, cum ar fi pepenii mari sau vasele voluminoase. În plus, acestea sunt deosebit de ușor de curățat.
PERFORMANŢĂ ŞI CONSUM:
Clasa de eficiență energetică: E
Volum total : 343 l
Volum Net Frigider : 249 l
Volum Net Congelator: 94 l
Capacitate congelare 24h : 4.5 kg
Consum energie/an: 233 KWh/an
Clasa climatică: SN-T
Nivel de zgomot : 39 dB
DESIGN
Uși culoare Metal Look, pereți laterali de culoare gri
Mâner vertical integrat
Iluminare LED în frigider
CONFORT ŞI SIGURANŢĂ:
Funcţie de super-congelare cu deconectare automată
Dezgheţare automată a frigiderului
DETALII COMPARTIMENT FRIGIDER
Răcire interioară dinamică, cu ventilator
5 rafturi din sticlă securizată, dintre care 2 reglabile pe înălţime, 4 rafturi extensibile
Suport pentru sticle
1 suport mare pe uşă, 3 suporturi mici pe uşă
SISTEM DE PROSPEŢIME:
1 sertar VitaFresh cu regulator de umiditate - păstrează fructele și legumele proaspete pe o perioadă mai îndelungată
DETALII COMPARTIMENT CONGELATOR
Sistem Low Frost - tehnologie pentru mai puţină gheaţă în congelator
Autonomie (fără curent) : 17 h
VarioZone - rafturi din sticlă detașabile pentru spațiu suplimentar în congelator
3 sertare transparente în congelator din care 1 BigBox
DETALII TEHNICE:
Uşă cu deschidere spre dreapta, reversibilă
Picioare frontale reglabile şi picioare posterioare cu role
Evacuarea apei din condens
Conexiune electrică: 220 - 240 V
DIMENSIUNI:
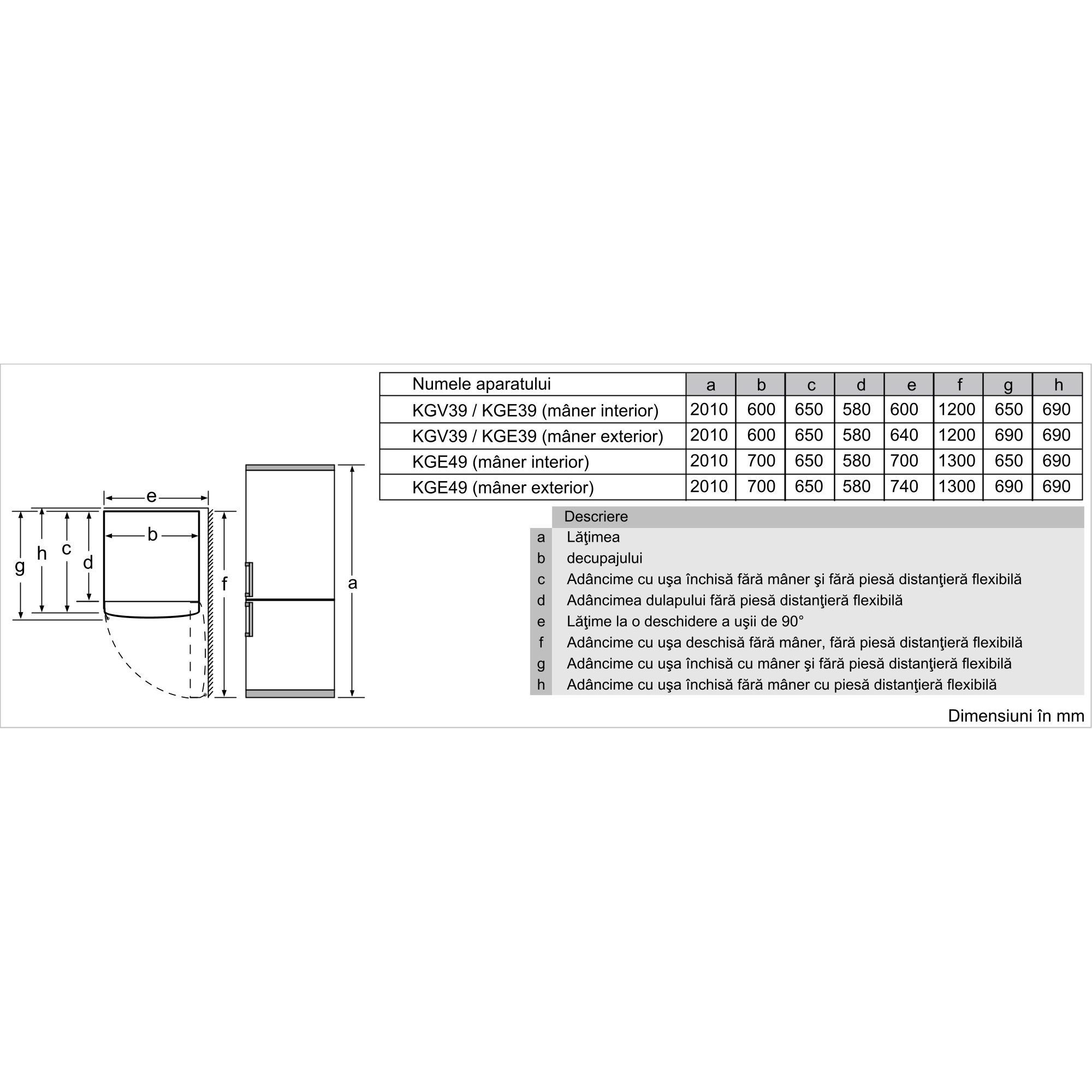
Dimensiuni (Î x L x A): 201 cm x 60 cm x 65 cm
MENTIUNI SUPLIMENTARE:
Bazat pe rezultatele testului standard de 24 ore. Consumul real depinde de modul de utilizare şi amplasarea aparatului.
Pentru atingerea nivelului de consum declarat, trebuie folosite distanţierele livrate. Drept rezultat, adâncimea aparatului se va mări cu 3,5 cm. Folosirea fără distanţiere nu afectează funcţionarea aparatului, cu excepţia unei uşoare creşteri a consumului de energie.



